Die Schlösser – Archäologie und Bauforschung
Der vorliegende Beitrag stellt schwerpunktmäßig die archäologische Begleitung der Maßnahme sowie die Ergebnisse der Bauforschung dar. Die Baugeschichte des Schlossensembles wird in weiter vertiefenden Beiträgen zur Geschichte, zur Bauforschung und zu den Sanierungsarbeiten für interessierte Leser ausführlicher dargestellt.
Der Vorgängerbau des Schlossensembles vor 1460
Archäologie und Bauforschung
Die Sanierung der Schlösser und deren Umbau zum Rathaus wurde intensiv archäologisch und bauforscherisch begleitet. Schon im Jahr 1988 ließ die Stadt vom Bauforschungsbüro Müthe & Gaissmaier ein verformungsgerechtes Bauaufmaß erstellen, welches als Grundlage für die Sanierungsplanung diente und auch später ständig während der Bauarbeiten nachgeführt wurde.
Inhalt
- 1 Archäologische Untersuchungen
- 2 Bauforschung
- 2.1 Bauphase 1 Altes Schloss 1460-1514
- 2.2 Bauphase 2: Neubau Fuggerschloss 1514-1565
- 2.3 Bauphase 3: Saaleinbau,Treppenturm und Loggia 1565-1655
- 2.4 Bauphase 5: Anbau der Fürstenzimmer und Barockisierung 1690-1716
- 2.5 Bauphase 6: Barockisierung 1716-1738; bis 1850
- 2.6 Bauphase 7: Umbau für staatl. Behörden, ab 1862
- 2.7 Bauphase 8: Schulnutzung, 1930-1972
Archäologische Untersuchungen
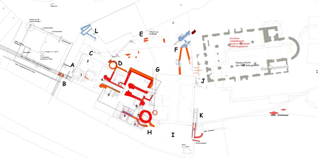
Besonders die archäologischen Untersuchungen konnten erst nach Räumung des Gebäudes und Hedrstellung von Bodenöffnungen durchgeführt werden. Es war von Anfang an bekannt, dass hier ein Vorgängerbau bestanden haben muss, dessen Kellerräume außerhalb der späteren Bebauung noch vorhanden waren und die auch noch zugänglich waren. Diese bekannten Teile konnten mit weiteren Grabungsergebnissen zusammengeführt werden und einen ungefähren Umfang des Vorgängerbaus aufzeigen. Die Grabungen wurden von der Fa. Archäologische Grabungen Mattheußer, Mettingen, durchgeführt.
Beim Ausbau des Schlossplatzes 2016 wurden die Bauarbeiten wieder archäologisch begleitet und ermöglichten eine Fortsetzung der früheren Grabungsergebnisse.





























Neben den Strukturen des Vorgängerbaus wurden bei den Grabungen auch Funde aus neuerer Zeit gemacht. Hier konnte z.B. die Lage der Stadtmauer von 1487 und der Zwingermauer (H) lokalisiert werden, welche um den ehemaligen Bergfried herum angelegt wurde. Die aufgehenden Teile der Zwingermauer wurden beim Anbau der barocken Prunkräume 1690 abgetragen. Die Reste der Mauern wurden gesichert und blieben im Zuge der Unterkellerung des Mittelbaus zugänglich und sichtbar. Die Idee eines ‚Archäologischen Fensters‘ auf die Mauern des Bergfrieds aus dem Biergarten der Gaststätte ließ sich leider nicht verwirklichen.












Auch der Auslass für Fußgänger nach Süden neben dem alten Schloss (K) wurde aufgedeckt und vermessen.
Das ehemalige Wildbad, auf der Stadtansicht von 1555 dargestellt und beschriftet, wurde gefunden. Da sich hier drei Schichten übereinander befanden, wurden die beiden oberen Lagen dokumentiert und anschließend abgetragen. (siehe hierzu auch die Ausführungen im Kapitel Bauforschung)




Bauforschung
Die Sanierung der Schlösser begann mit einer intensiven Bauforschung. Hierzu wurde zuerst im Jahr 1988 ein verformungsgerechtes Bauaufmaß erstellt, welches über die gesamte Planungs- und Bauzeit fortgeführt und ergänzt wurde. Parallel hierzu wurden an vielen Stellen Aufschlüsse hergestellt, um die Konstruktion zu verstehen und Bauschäden festzustellen. Hierdurch konnten ‚Überraschungen‘ während der Sanierungsarbeiten vermieden werden, was zu einer Einhaltung der veranschlagten Kosten führte.
Da die Ergebnisse der Bauforschung vermutlich nicht auf das gleiche Interesse wie die Baugeschichte der Schlösser stoßen, werden deren Ergebnisse hier gesondert dargestellt und sind durch Links mit den Artikeln verbunden.
Bauphase 1 Altes Schloss 1460-1514
Fundamente und Substruktionen
Die Fundamente des jetzigen Alten Schlosses gehen noch fast 4 Meter tief in die Erde. Sie bestehen aus großen Bögen, welche aber kein Scheitelmauerwerk aufweisen, so dass der Raum innerhalb dieser Substruktionen nicht als Keller genutzt wurde. Es ist denkbar, dass es sich hier um reine Unterkonstruktionen handelt, die 1460 in den umgebenden Wassergraben gebaut wurden und man es nicht wagte, diesen feuchten Bereich als Keller zu nutzen. Als Verteidigungslinie war der Wassergraben nicht mehr erforderlich, nachdem man zu dieser Zeit (1480-1504) auch die Stadtbefestigung neu anlegte und die Stadt mit einer Mauer umschloss. Auch die Fundamentmauern des Fuggerschlosses gehen ca. 4 m tief in die Erde, ohne dass der hierdurch entstehende Raum erkennbar als Keller genutzt wurde.


Diese Substruktionen sind bei den Untersuchungen freigelegt worden. Weil der Keller nach der Sanierung genutzt werden sollte, wurden die Bögen mit Schildmauern aus Beton versehen. Die Bögen wurden teilweise sichtbar belassen.









Alte Befensterung
Das Schloss wies gemäß damaligen Baugepflogenheiten, nur relativ kleine Fenster auf, welche in stark abgeschrägten Fensternischen saßen. Eines dieser Fenster konnte im Zuge der Bauaufnahme im Jahr 2012 wieder entdeckt werden. Es wurde offenbar beim Bau des Zwischengebäudes (1655?) zugesetzt. Der Befund wurde im Treppenhaus sichtbar gelassen.



Fachwerkwände im alten Schloss
Die Innenwände des alten Schlosses bestanden aus Fachwerk, großenteils in Eiche. Während der Sanierungsarbeiten wurden einige davon gefunden, sie waren aber nicht mehr vollständig erhalten und auch bei der Barockisierung zur Putzaufnahme beschädigt worden. Die Reste blieben erhalten, auf eine Sichtbarmachung wurde aber verzichtet. Im Raum A 1.08 war der massiven Außenwand innen eine Fachwerkwand vorgesetzt worden, ebenso in der Nordwand des Treppenhauses.





Treppenanlage
Die Lage der Treppe bis zum Einbau der Barocktreppe 1728 konnte nicht zweifelsfrei geklärt werden. Nur im EG hatte sich im Raum A 0.08.1 eine Spur eines Treppenlaufs an der Wand zum Mittelflur erhalten. Der Rest eines Querbalkens lässt ein anschließendes Podest vermuten. Ungeklärt bleibt allerdings, ob sich dieser Lauf gerade fortsetzt oder nach dem Podest gegenläufig wird. Ebenso konnte nicht nachgewiesen werden, ob sich die Treppenkonstruktion so in den anderen Stockwerken fortsetzt, weil der barocke Einbau alle anderen Spuren beseitigt hat.
Relativ eindeutig ist der später vermauerte Zugang zu diesem Treppenhaus rechts zu definieren. Der Befund ist nicht mehr sichtbar, er wird vom Gaststätteneinbau verdeckt.




Küche im alten Schloss
Im Raum A 1.09.3 wurden ein Fußboden aus Ziegeln, ein Herdfundament und die Reste eines Kamins mit Esse gefunden. Dies deutet mit großer Sicherheit auf die Lage der Küche an dieser Stelle hin. Der Kamin setzt sich auch in das 2.OG fort, ohne dass hier Spuren einer weiteren Küche gefunden wurden. Dieser Raum dürfte vorwiegend als Heizraum für die anliegenden Kachelöfen genutzt worden sein.




Abtritte
Noch im Urkataster 1823/27 sind auf der Ostseite des Alten Schlosses kleinere Anbauten dargestellt, die als alte Abtritte interpretiert werden können. Im Rahmen des Umbaus 1856/62 wurden diese abgebaut, aber an dieser Stelle im Inneren des Gebäudes neue Abtritte eingebaut, die nach 1900 zu WC-Anlagen umgebaut wurden. Diese verblieben hier bis zur Sanierung 2010. Von den Abtritten selbst sind keine Spuren überkommen, der Austritt aus der Außenwand konnte aber zumindest im Raum A 2.07 im 2. OG gefunden werden. Der Befund ist nicht mehr sichtbar.


Deckenkonstruktionen
Die bauzeitlichen Deckenkonstruktionen konnten an mehreren Stellen aufgedeckt werden. Es finden sich teilweise Füllungen aus Flechtwerk mit unterseitigem Lehmverputz oder auch ein Lehmschlag auf Bohlen, die früher wohl einmal von unten sichtbar waren. Interessant ist, dass damals schon als Isolierung über dem unbeheizten EG Moos als Wärmedämmung verwendet wurde. Die Befunde wurden in situ belassen, sind aber durch neue Deckenverkleidungen nicht mehr sichtbar.









Stadtmauer
Im Zuge der archäologischen Grabungen konnten Fundamentreste der von Thoman beschriebenen, 1488 erbauten Bastion vor dem alten Schloss gefunden werden. Schon bei einer Sondierungsgrabung 2008 wurden an der Südwestecke des alten Schlosses zwei kreisförmige Grundmauern entdeckt, die nach den weiteren archäologischen Grabungen zu dieser genannten Bastei ergänzt werden konnten. Die Mauer wurde um den Turm des Vorgängerbaus herumgebaut.












Der Auslass aus der Stadt (K)
Wohl gleichzeitig mit dem Bau der Stadtmauer wurde auf der Ostseite des alten Schlosses ein Fußgängerauslass aus der Stadt geschaffen. Der Abgang war im Bereich der Bastei überwölbt und wurde bei Freilegungsarbeiten der Fundamente im Jahr 2008 wiederentdeckt. Schon 1988 war man bei den Sanierungsarbeiten der Stadtmauer auf diesen Gang gestoßen (Grabung Hans Burkhart), konnte damals aber noch nicht den Zusammenhang herstellen.

Das Wildbad
Das auf der Stadtansicht von 1555 dargestellte Wildbad wurde im Zuge der archäologischen Grabungen gefunden. Hier wurden unter dem Fußboden von 1930 in drei Lagen vier verschiedene Schichten aufgedeckt. Allerdings war eine klare Zeitschiene – außer den Lagen – nicht feststellbar. Außerdem konnte für alle Schichten die Frage des Zugangs nicht zweifelsfrei geklärt werden.
Die oberste Lage (Ebene -1) erstreckte sich auch auf den Anbau aus dem Jahr 1690, als die Fürstenzimmer angebaut wurden. Die Lage konnte wegen ihres Gefälles zu einem Ablauf hin als Baderaum bestimmt werden. Entweder wurde dieses Bad erst 1690 hergestellt, oder es handelt sich um einen älteren Bau, der in den Anbau integriert und erweitert wurde. Dieses Bad wurde aber im 18. Jhdt. aufgegeben, denn im Grundriss von 1850 ist an der Stelle des Bades eine verwinkelte Treppe vom EG zum 1.OG dargestellt.



Dieser Bauphase wurde auch ein nicht vollständig erhaltener Befund zugeordnet, der wohl der Beheizung des Raumes und der Warmwasserbereitung auch für die im angrenzenden Raum gelegene Waschküche gedient haben dürfte.




Die nächste Schicht (Ebene -2) lag ca. 30 cm tiefer. Als südliche Außenwand wurde bei diesem Bau die Zwingermauer verwendet. Auf der Fläche ist teilweise ein Ziegelfußboden erhalten, der allerdings kein Gefälle aufweist. Eine halbwegs nachweisbare Zeitstellung kann nicht angegeben werden.


Die unterste Schicht (Ebene -3) liegt noch einmal ca. 50 cm tiefer und konnte ebenfalls nicht zeitlich bestimmt werden. Dieses Gebäude war mit einer Breite von 1,12 m deutlich kleiner und hatte auf der Südseite eine eigene Außenwand, die hinter der Zwingermauer lag. Dieser Fußboden wies zwar Verformungen auf, aber keinen gezielten Ablauf. Hier lagen zwei Ziegelböden übereinander, d.h., das Gebäude bestand relativ lange, so dass der Fußboden einmal erneuert werden musste. Es wäre möglich, dass dieses Gebäude schon in der Bauphase 1 errichtet wurde und vielleicht auch nicht als Bad diente.



Die genaue Ausdehnung des Wildbades konnte nicht bestimmt werden, da die angrenzenden Flächen durch die nachfolgenden Bauten gestört waren. Daher konnte auch kein Zugang gefunden werden. So verbleiben bezüglich des Wildbades doch noch ein paar nicht zu klärende Fragen.
Bauphase 2: Neubau Fuggerschloss 1514-1565
Stadtmauer
Beim Bau des Fuggerschlosses wurde die Stadtmauer als südliche Wand verwendet. Die Stadtmauer war zweischalig aufgebaut, dazwischen verlief ein Wehrgang, der zur Stadtseite hin offen gewesen sein dürfte. Der Wehrgang hatte zwei Ebenen, die mit Steigschächten untereinander verbunden waren.



Reste dieses Wehrgangs wurden im Rahmen der Bauforschung in Raum F 1.16 gefunden. Teilweise wurde der Bereich des Wehrgangs später als Abtritt oder Abstellraum genutzt und ist bis heute zu sehen. 1779 wurde die Stadtmauer innerhalb des Fuggerschlosses größtenteils abgetragen und die Fläche den Räumen zugeschlagen. Die Feldseite der Stadtmauer wurde hierbei mit Fenstern versehen.




Neben der Wendeltreppe befindet sich im EG und 1.OG ein kleiner abgemauerter Raum, der als Zugang zur Stadtmauer interpretiert wird.


Der EG Bereich der Stadtmauer war stadtseitig mit Blendbögen gegliedert. Ein Teil dieser Bögen wurde im Raum F 0.14 aufgedeckt, als die spätere Vormauerung absackte und zeigte noch den originalen Verputz von vor 1514. Der Befund wurde gesichert und sichtbar erhalten.



Ecktürmchen
Reste der Ecktürmchen wurden im DG des Zwischenbaus gefunden. Vom Giebeltürmchen und den die Fassade von 1514 gliedernden Lisenen sind bis heute Reste sichtbar erhalten.



Erker im 2.OG
Bei der Restaurierung des heutigen Ratssaals wurde der Zugang zu dem schon auf der Stadtansicht 1555 dargestellten Erker gefunden. Der Befund wurde restauriert und sichtbar gemacht.



Balkendecken
Die in manchen Räumen noch vorhandenen Unterdecken aus profilierten Balken wurden aufgearbeitet und sichtbar belassen.




Wir finden aber auch noch eine andere Form von Zierdecken in diesem Gebäude. Hier sind die tragenden Holzbalken mit Brettern verkleidet und im Balkenzwischenraum mit einem Deckbrett versehen, wobei die Fuge durch einen Profilstab verdeckt wird. Die seitlichen Bekleidungen der Balken sind an den Auflagerenden abgerundet und auch das Deckbrett folgt dieser Form. Diese Bretter wurden scheinbar im nassen Zustand so gebogen. Nur noch wenige dieser Endbretter konnten bei der Freilegung sichergestellt werden. Die Frage ist noch offen, ob es sich hier um die ältere Form der Deckengestaltung aus den Jahren 1513-15 handelt und die profilierten Zierbalken erst 1565 eingebaut wurden, oder ob beide Arten der Deckengestaltung aus dem gleichen Bauzeitraum stammen.



Bohlenwände
An einigen Stellen des Fugger-, aber auch des Alten Schlosses finden wir Nuten in Decken- oder Fußbalken, die darauf hindeuten, dass die nichttragenden Zwischenwände der Schlösser als Bohlenwände ausgeführt waren (Räume 0.11, 2.14, 2.11, 2.06). Ob diese Wände holzsichtig waren oder durch Geflecht und Lehmbewurf den Charakter einer massiven Wand vermittelten, lässt sich heute nicht mehr nachweisen, da eine solche Bohlenwand nicht vollständig erhalten geblieben ist.

In Raum F 2.14 haben sich Spuren einer Wandbemalung erhalten und in Raum F 1.12 finden wir eine ornamentale Bemalung im Sockelbereich. Beide Funde konnten nicht zeitlich eingeordnet werden und wurden in situ belassen.
Wasserversorgung
Beim Bau der ersten Wasserleitung in der Stadt Weißenhorn 1538/39 erhielt die Herrschaft „ain Röhrle In ds Schloß bewilliget“ (A 116/0). Bei den Grabungsarbeiten wurde im Raum F 0.11 eine hölzerne Deichel gefunden, bei der es sich um die genannte Wasserleitung handeln könnte.


Zu einem unbekanntem Zeitpunkt wurde im Schlosshof noch ein Grundwasserbrunnen geschlagen, der als Pump- oder Schöpfbrunnen die Wasserversorgung unterstützte. Dieser Brunnen war bis Mitte der 1960er-Jahre noch vorhanden.



Bauphase 3: Saaleinbau,Treppenturm und Loggia 1565-1655
Sprengwerk
Für den Einbau des Festsaales wurde um 1565 ein Sprengwerk im Dachgeschoss zur Lastabtragung eingebaut. Trotz großer Querschnitte konnte ein Absacken der Decke um ca. 30 cm nicht verhindert werden.

Treppenturm
In der Konstruktionsstärke der Decke über EG hat sich am Treppenhausturm ein Profilgesims erhalten, welches eindeutig beweist, dass der Treppenhausturm an dieser Stelle erst später angebaut war.

Saaleinbau
Man hatte schon vermutet, dass die profilierte Saaldecke noch vorhanden war. Nach Öffnung des Fußbodens im Dachgeschoss konnte die Vollständigkeit der Balken festgestellt werden. Unbekannt war jedoch der Zustand der Balken. Nach Aufgabe des Saales wurde der Raum durch Fachwerkwände unterteilt und eine abgehängte glatte Putzdecke eingebaut. Zunächst wurden die Trennwände entfernt.



Beim Ausbau der abgehängten Putzdecke wurde festgestellt, dass deren Unterkonstruktion teilweise aus profilierten Balken bestand, die wohl an irgendeiner Stelle im Schloss abebaut worden waren. Als Unterdecke wurden bemalte Deckenbretter verwendet, bei denen man auch nicht feststellen konnte, wo diese früher einmal eingebaut waren.



Der Zustand der Decke war größtenteils in Ordnung. Vom mittleren Tragbalken war etwas Profil abgeschlagen worden und an einer Stelle war ein größerer Feuchteschaden mit verfaultem Holz.



Die gesamte Decke war zu einem unbekannten Zeitpunkt weiß gekalkt worden. An einer Stelle wurde ein Freilegungsversuch durchgeführt, um den Arbeitsaufwand abschätzen zu können. Danach wurde die Sanierung der Decke beschlossen und durchgeführt.





Fassungen und Bemalungen
Nennenswerte Farbfassungen, Ornamente und Wandbilder wurden, abgesehen von kräftigen Farbgebungen des 19. Jhdt., nicht gefunden. Die Farbgestaltung am o.a. Erker wurde freigelegt und restauriert. Nur im Raum F 2.14 (Nordwestzimmer) wurde bei einem Suchschlitz eine Bemalung festgestellt, welche aus Kostengründen nicht näher untersucht oder wiederhergestellt wurde.
Loggia als Zwischenbau
Das Vorhandensein einer Loggia konnte mit den Befunden nicht eindeutig bewiesen werden. Allerdings konnte in diesem Bereich eine Bogenstellung aus vier Bögen unterschiedlicher Größe erkannt werden, die nicht mit der sonstigen Struktur der Stadtmauer übereinstimmt und daher wohl später entstanden ist. Diese Bogenstellung wurde erhalten und zum bestimmenden Moment der jetzigen Eingangshalle entwickelt.



Bauphase 5: Anbau der Fürstenzimmer und Barockisierung 1690-1716
Kesselanlage der Waschküche
Das frühere Wildbad wurde in das EG des Anbaus integriert und erweitert. Eine Heizanlage mit gemauerten Kesseln diente der Warmwasserbereitung für Waschküche und Bad.



Untergeschoss des Anbaus
Als Fundamente für den Anbau wurden Mauern vom Grund des Stadtgrabens aus aufgerichtet. Die Zwingermauer wurde hierfür abgetragen. Die hierdurch entstandenen Räume wurden aber nicht als Keller genutzt. Bei den Sanierungsarbeiten wurden die Reste dieser Mauern gefunden. In die Außenmauer wurden breite Fensternischen bis auf das Niveau des anstehenden Geländes eingebaut. Hinweise auf Zugänge oder Fenster konnten hier aber nicht gefunden werden.









Auf dem obigen Bild (A) ist die Rundmauer des Bergfrieds zu sehen und ein rechteckiger, innen verputzter Raum, der keinen Zugang aufwies. Die Nutzung dieses Raumes konnte nicht erklärt werden. Nach Abbruch dieses Raumes eröffnete sich in der Schicht darunter (B) die vorgelagerte Zwingermauer und eine darauf stoßende weitere Mauer, deren Bestimmung ebenfalls nicht zu klären war.
Diese Funde wurden gesichert, erhalten und in die UG-Nutzung einbezogen.
Trauungszimmer
Das heutige Trauungszimmer (Raum A 1.10) wurde 1694 unter Einbeziehung des ehem. Mittelflurs neu geschaffen. Dafür wurde ein Holzbalkenrost mit Schwalbenschwanzverbindungen über den Gewölben des EG eingebaut (Dendro 1693-94). Über diesem Raum (Decke über 1.OG) wurde 1737 (Dendro 1736-37) wegen der nun größeren Spannweite eine zusätzliche Balkenlage eingezogen. Zur besseren Belichtung des Raumes wurde auf der Nord- und Westseite je ein weiteres Fenster eingebaut. Die unterschiedliche Sturz- und Nischenausbildung weist auf einen nachträglichen Einbau hin. Auch im darüberliegenden Stockwerk wurden hier zusätzliche Fenster eingebrochen.





Im Zuge der Sanierungsarbeiten wurde der Holzbalkenrost freigelegt und tiefergelegt, um die unterschiedlichen Bodenhöhen auszugleichen.
Bauphase 6: Barockisierung 1716-1738; bis 1850
Abgeschlepptes Dach
1716 wurde das Dach über dem Anbau von 1690 geändert, was als 2. Barockisierungsphase bezeichnet wird.


Neues Treppenhaus
Im alten Schloss wurde ein neues Treppenhaus mit einer barocken Prunktreppe eingebaut. Die Unterkonstruktion der Treppe konnte dendrochronologisch auf 1728 datiert werden. Die statischen Eingriffe in die Zerrbalkenlage versuchte man durch einen groß dimensionierten Überzug im DG zu kompensieren, was aber nur bedingt gelang.






Bei den Sanierungsarbeiten wurden die im Barock geschaffenen großzügigen Öffnungen zu den Fluren aufgedeckt und wiederhergestellt.
Stuckarbeiten
Nachdem über dem Raum A 1.10 (Trauungszimmer) eine zusätzliche Balkenlage eingefügt worden war (1737), wurde dieser Raum mit einem reichen Bandelwerk und Rankenstuck versehen. Dieser Stuck war im Laufe der Jahrhunderte mehrfach überstrichen worden, so dass er im Zuge der Sanierung freigelegt werden musste. Teilweise war der Stuck durch Einbauten zerstört worden.



Zeitgleich dürften auch die Fürstenzimmer im Anbau von 1690 stuckiert worden sein. Die fast quadratischen, ca. 35 m² großen Zimmer, erhielten eine aufwändige pastellfarbig gefasste Stuckierung. Auch hier war der Stuck durch Einbauten teilweise zerstört, mehrfach überstrichen und sogar abgefallen.










Türen
Alle Türen im Alten Schloss und im Mittelbau wurden bei der Barockisierung als gleichartige zweiflügelige kassettierte Türen aus Eiche mit profilierter Bekleidung ausgeführt, wobei die Türen so angeordnet wurden, dass Enfiladen entstanden. Im 2.OG haben sich nur zwei barocke einflügelige Türen erhalten, die zudem offenbar nicht mehr in situ sind. Die Türen zu innenliegenden Räumen wurden mit Oberlichtern versehen.









Fenster
Im gesamten Alten Schloss wurden 1662 neue Fenster eingebaut und die Fensteröffnungen wesentlich vergrößert (siehe hierzu auch Bauphase 1). Unter Umständen wurden die Fenster um 1740 noch einmal erneuert. Im Treppenhaus des alten Schlosses haben sich bis heute drei eichene Fenster aus der Barockzeit erhalten, deren Zustand noch durchaus ordentlich war und die erhalten werden konnten.
Fußböden
Im alten Schloss hatten sich nur in den Räumen A 1.06-1.08 barocke Fußböden aus Eiche und Esche erhalten. Der Fußboden in A 1.06 war hierbei bis zuletzt sichtbar und begangen.



Die Fußböden wurden ausgebaut und in A 1.06 auch wieder eingebaut. Da die Unterkonstruktion des Bodens nicht mehr tragfähig war, wurde sie erneuert. Hierbei wurde das darunterliegende Gewölbe sichtbar. Die Balkenlage war beschädigt und musste erneuert werden.



Der große Saal im Fuggerschloss wurde scheinbar nicht mehr gebraucht und mit Fachwerkwänden in vier ungefähr gleich große Räume unterteilt. In diesen vier Räumen des 2.OG fand man die wohl überraschendste Entdeckung: bemalte Fußböden! In drei der vier Räumen fanden sich geometrisch bemalte Fußböden in einer recht exakten Ausführung in einer bemerkenswerten Farbigkeit. Die Muster sind unterschiedlich und imitieren entweder einen Fliesenboden oder ein Intarsienparkett. Es mag sein, dass man nach dem aufwendigen Umbau des Alten Schlosses hier sparen wollte und die gewünschte Gestaltung nur malen ließ. Leider stellte sich heraus, dass diese Böden mit bleihaltigen Farben bemalt waren, so dass sie aus gesundheitlichen Gründen nicht in andere Räume eingebaut werden konnten. Eine Verwendung bei der Wiederherstellung des Saales schied wegen der Unterschiedlichkeit der Böden aus.










Kamine
Das Kamin- und Ofensystem wurde komplett erneuert. Die Kamine wurden als geschleifte Züge in den Querwänden des Mittelflures geführt, welche allerdings nachfolgend mehrfach geändert und um- bzw. abgebaut wurden, so dass die ursprüngliche Kaminführung nicht mehr erhalten ist. Zum Heizen der Kachelöfen wurden Heizkammern eingebaut, die vom Flur aus beschickt wurden, so dass in den Wohnräumen keine Feuerung erforderlich war. Im Gewölbeflur des 1. OG (A 1.09) hat sich das Fundament eines gemauerten Herdes erhalten (siehe Bauphase 1), der wohl noch aus der 1. Bauphase stammen könnte. Nicht geklärt ist die Funktion eines mit Holzbrettern verkleideten Schachtes von Raum A 0.06 im EG zu Raum A 1.10 im 1.OG.








Schlossküche 1740 / Treppe
1740 wurde im EG des Mittelbaus die Schlossküche eingebaut oder erweitert. Das Wildbad (siehe Bauphase 5) wurde aufgegeben und an dieser Stelle eine verwinkelte Treppe in das 1. OG hergestellt, die in die Anken der Gewölbe ‚hereingebastelt‘ wurde. Die im Bestandsplan 1850 dargestellte Treppe selbst wurde zwar nicht gefunden, aber die Aussparungen und Wechsel der Deckenkonstruktion stimmen mit der Planzeichnung überein.





Von der Schlossküche konnten keine Befunde gemacht werden. Die späteren Umbauten in den Bauphasen 7 und 8 haben so stark in die Konstruktion eingegriffen, dass alle alten Strukturen vernichtet wurden. Nur ein bei den archäologischen Grabungen gefundenes Streifenfundament, welches später als Stützenfundament verwendet wurde, könnte noch zu einer früheren Bauphase gehören. Auch die sehr enge Balkenlage der Decke über EG lässt darauf schließen, dass hiermit ein großer, stützenfreier Raum geschaffen werden sollte. Erhebliche Senkungen der Konstruktion beweisen, dass dieser Versuch zumindest in statischer Hinsicht nicht gelungen ist.


Balkon
In den Zwickel zwischen Altem Schloss und Mittelbau wurde im EG ein kleiner Raum eingebaut, dessen Decke im 1.OG vom Raum M 1.02 aus als Balkon genutzt werden konnte. Eine entsprechende Türe wurde bei den Bauarbeiten gefunden. Man hatte, vermutlich beim Umbau 1862 in Bauphase 7, den unteren Teil der zweiflügeligen Türe belassen und einfach eingemauert, während man über der Brüstung ein neues Fenster einbaute.


Einbauschrank
Rätsel gibt der Einbauschrank in Raum M 1.01.2 auf. Es ist unwahrscheinlich, dass ein so reich geschnitzter Einbauschrank in einen gefangenen Raum gesetzt wurde. Auch ist im Bestandsplan 1850 hier kein Schrank eingezeichnet. Es ist möglich, dass dieser Schrank in der späteren Umbauphase 7 von unbekanntem Ort hierher versetzt wurde, denn dieser Raum wurde von den Schulschwestern als Refektorium genutzt. Der Schrank wurde bei der Sanierung ausgebaut und im Trauungszimmer im 1.OG des Alten Schlosses eingebaut.





Rückbau der Stadtmauer 1779
1779 wurden die inneren Teile der Stadtmauer im 1.OG des Fuggerschlosses abgebrochen und die Fläche des Wehrgangs in die Nutzung der Räume F 1.16, F 1.14 und F 1.11 einbezogen. Bei den Bauarbeiten konnten die verlängerten Balken gut erkannt werden.






Bauphase 7: Umbau für staatl. Behörden, ab 1862
Gefängniseinbau
Vom Einbau des Gefängnisses in das EG des Zwischenbaus waren nicht viele Spuren zu finden. Zu groß waren die späteren Veränderung beim Umbau zur Mädchenrealschule. Nur der im Bauplan 1862 eingezeichnete Fuchs zur Beheizung der Zellen konnte aufgedeckt werden.


Fußboden Fuggerschloss
Die wesentlichsten Umbauarbeiten fanden im Erdgeschoss des Fuggerschlosses und des Zwischenbaus statt. Der Fußboden des Erdgeschosses im Fuggerschloss und Zwischenbau wurde hierbei um ca. 40 cm höher gelegt. Es ist aus heutiger Sicht nicht zu erklären, warum dies geschah und wie die Räume früher genutzt wurden, besonders wegen der Brüstungshöhen der Fenster. Man beließ den alten Fußboden, füllte mit Bauschutt auf und baute hierauf einen neuen Boden auf. Dieser bestand aus einem Holzboden auf Lagerhölzern, im Flurbereich wurde der Boden gepflastert und später in Terrazzo ausgeführt. Durch das Höherlegen des Fußbodens veränderte sich auch die Fenstersituation im EG Fuggerschloss, weil sich hiermit auch die Brüstungshöhen veränderten.
Bei einer Untersuchung des Bauschutts unter dem Kreisarchäologen Ambs wurden im März 2010 einige kleinere Funde gemacht, die jedoch keine saubere Datierung zulassen. Ohne Beweise hierfür zu haben wurde die Vermutung geäußert, bei dem Bauschutt könnte es sich um Reste der im Februar 1859 eingestürzten alten Stadtpfarrkirche handeln, da die Bauarbeiten gleichzeitig stattgefunden haben könnten.





Ungeklärt ist auch noch eine Störung im Mauerwerk der Westseite in Raum 0.13. Während die Fundamentmauern in diesem Raum normalerweise glatt und vollfugig gemauert sind, tritt hier plötzlich eine ungeordnete Mauerung auf, bei welcher sogar Kalksteinquader mit vermauert wurden. Entweder handelt es sich hierbei um die recht unfachmännische Reparatur einer früheren Setzung oder es befand sich hier einmal ein größerer Eingang, welcher nicht mehr gebraucht wurde und zugemauert wurde. Die Fenstersituation hier bedarf noch einer weiteren Forschung.



Stark geändert wurde die Grundrisssituation in Raum F 0.11. Die Anheizkammern verschwanden, stattdessen wurde ein Flur abgetrennt und eine neue Zwischenwand eingezogen. Auch die Fassadenteilung in Raum F 0.10 wurde geändert. Statt der mittigen Türe nach außen und den beiden schmalen Fenstern daneben wurden neue Fenster in der Größe der danebenliegenden eingebaut. Hier wird der ehemalige Haupteingang des Fuggerschlosses vermutet.


Gewölbekeller
Im Alten Schloss wurde der mittlere Gewölbekeller (A 0.05) verfüllt. Es ist nicht bekannt, aus welchen Gründen dies geschah. Der südliche Gewölbekeller (Raum A 0.04) hatte nicht diese Tiefe.


Raumteilungen
Für die Behördennutzung wurden mehrere Räume unterteilt, besonders wurden Flure hergestellt, um gefangene Räume besser erschließen zu können.
Im 1.OG wurde im Alten Schloss der große stuckierte Raum A 1.10 (jetzt Trauungszimmer) durch Zwischenwände unterteilt, wodurch man diesem Raum den großzügigen Eindruck nahm. Hier wurde die Küche der Dienstwohnung des Oberamtsrichters eingebaut.



Im 1.OG des Fuggerschlosses wurde ein Zwischenflur eingebaut (Raum F 1.11.3).


Die gefangenen Räume des Zwischenbaus wurden neu unterteilt, wobei hier zweiflügelige Barocktüren, die zuvor in anderen Räumen waren, versetzt wurden. Im 2. OG wurde die Grundrisssituation stark verändert, indem der Erschließungsflur auf die Nordseite gelegt und innenliegende Räume geschaffen wurden.
Zum Fuggerschloss wurde ein neuer Zugang vom Mittelbau aus angelegt, wobei man den Höhenunterschied der Fußböden durch eine vorgelegte neue Treppe überwand. Diese Treppe blieb nicht erhalten und wurde später durch eine schräg verlaufende Treppe neben dem Treppenturm ersetzt (leider nicht dokumentiert). Der Renaissancesaal, bis dahin schon in vier Räume geteilt, wurde nochmals durch einen Erschließungsflur verändert und beseitigte die gefangenen Räume für eine bessere Wohnnutzung.


In den Räumen A 1.10 und A 2.10 des Alten Schlosses wurden die Fenster auf der Nordseite zugesetzt und auch im Treppenhaus wurde ein Fenster innenseitig zugemauert. Vor Beendigung der Arbeiten verewigten sich die Handwerker hinter dem Fenster mit Namen und Datum.


Die offene Situation des Treppenhauses mit den gewundenen Säulen im 2. OG wurde aufgegeben und die Öffnungen geschlossen. Auch im 1.OG wurde das Treppenhaus durch Raumeinbauten verkleinert.



Fußböden und Wände
Bei den Umbauarbeiten waren die Fußböden wohl in einem solch schlechten Zustand, auch setzungsbedingt, dass die Fußböden in allen Geschossen erneuert wurden. Hierbei wurden die Setzungen durch Aufdoppeln der Balken oder beigenagelte Bretter ausgeglichen. Die meisten Böden weisen eine für das 19. Jhdt. typische Bauweise mit Eichenkreuz und Weichholzdielen auf. Kräftige Farbgebung und Dekoration des 19. Jhdt. hatte sich an manchen Stellen erhalten, ohne dass hier Bedeutendes gefunden wurde.






Kanalisation
Die 1876 hergestellte Kanalisation mit gemauerten Kanalen wurde bei den Voruntersuchungen und bei den archäologischen Grabungen gefunden. Derartige Kanäle wurden auch schon früher einmal gefunden und wegen ihrer Größe fälschlicherweise als unterirdische Fluchtgänge gedeutet. Der Auslass des Kanals in der Stadtmauer ist, wenn auch vermauert, heute noch in der Stadtmauer zu sehen.




Einbau Gerichtssaal
Beim Einbau des Gerichtssaales 1879 wurde eine Wand entfernt und durch einen Stahlträger ersetzt, Der Fußboden erhielt neue Lagerhölzer, welche dendrochronologisch auf 1878 datiert wurden. Diese neuen Balken ersetzten die bei der Entfernung des Wehrgangs 1779 eingebrachten Verlängerungsstücke. Auch die Oberlichte zum Gang wurden 1879 eingebaut. um den Sitzungssaal des Gerichts einzubauen. Es ist nicht bekannt, wo sich der Sitzungssaal vorher befunden hat.



Aborte im Fuggerschloss
Die 1893 eingebauten Fallrohre für die Aborte im Fuggerschloss wurden bei den Bauarbeiten aufgedeckt.


Bauphase 8: Schulnutzung, 1930-1972
Terrazzoboden 1930



Beim Umbau 1930 für die Schulnutzung wurde über dem Pflasterboden von 1862 ein Terrazzoboden verlegt.
Fuchs zum Heizkamin der Zentralheizung



Für die Rauchgase der Zentralheizung wurde 1931 ein Fuchs zum Kamin der Waschküche angelegt. Wegen seiner enormen Höhe musste der Kamin durch einen abgespannten Eisenring stabilisiert und mit einem Laufsteg für den Kaminkehrer versehen werden.


Toiletteneinbau 1932


1932 wurden Toiletten mit Wasserspülung eingebaut. Die hier sichtbaren Fliesen wurden erst 1955 angebracht.
Fliesen 1934


Wegen der feuchten Wände wurde der Flur 1934 mit gelben Fliesen verkleidet.
Treppenumbau 1964
Das Treppenhaus der Wendeltreppe wurde 1964 im 2.OG des Fuggerschlosses geöffnet.



Zelleneinbau in die Fürstenzimmer






Die Fürstenzimmer mit ihren Stuckdecken wurden 1965 recht gefühllos durch Trennwände in Klosterzellen für die Schwestern umgebaut.
Waschraum im Alten Schloss
In die Küche der Wohnung A 1.10.2 wurde um 1971 ein Waschraum mit 6 Plätzen eingebaut.


Heizungseinbau Altes Schloss 1999


1999 wurde die Zentralheizung des Fuggerschlosses auf Gasbetrieb umgestellt und das Alte Schloss an diese Heizung angeschlossen.


